DETALLES DEL PROYECTO
El propietario había vivido durante años en el local a pesar de que a nivel urbanístico estaba registrado como oficina. Recurrió a nosotros para legalizar la situación y poder alquilar o vender el local como vivienda una vez realizado el cambio de uso, un caso bastante habitual en el que la intervención de arquitectos en Barcelona resulta clave para alinear realidad, normativa y documentación administrativa.
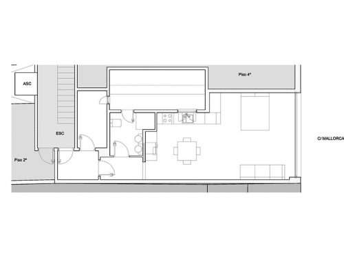
Durante los estudios previos pudimos comprobar que el proyecto era compatible con la normativa urbanística. También obtuvimos los planos originales del edificio, en los que pudimos observar que el local se encontraba en su estado original. Como en ese estado ya cumplía con el resto de requisitos normativos, se pudo llevar a cabo el cambio de uso sin necesidad de realizar ninguna obra.
EMPLAZAMIENTO
C/ Aragón, BARCELONA
CLIENTE
Privado
AÑO
2013
SUPERFICIE
50 m2










