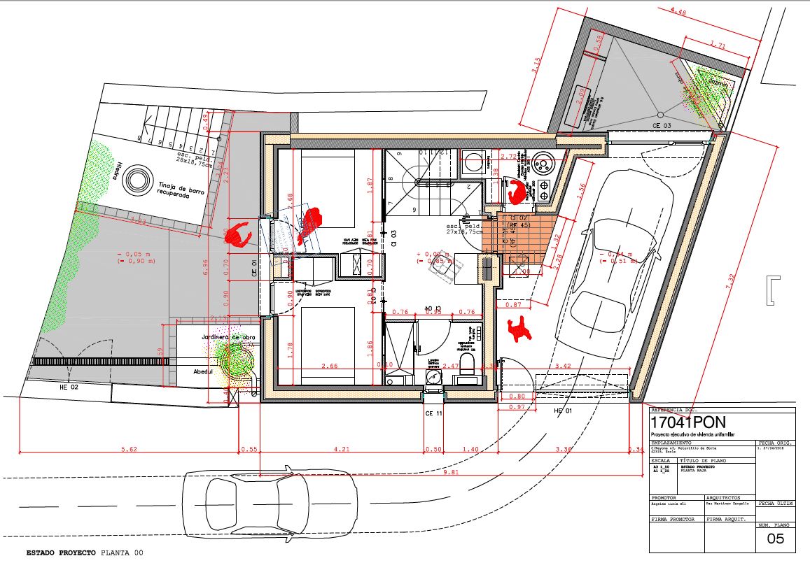
- proyecto ejecucion planta 1