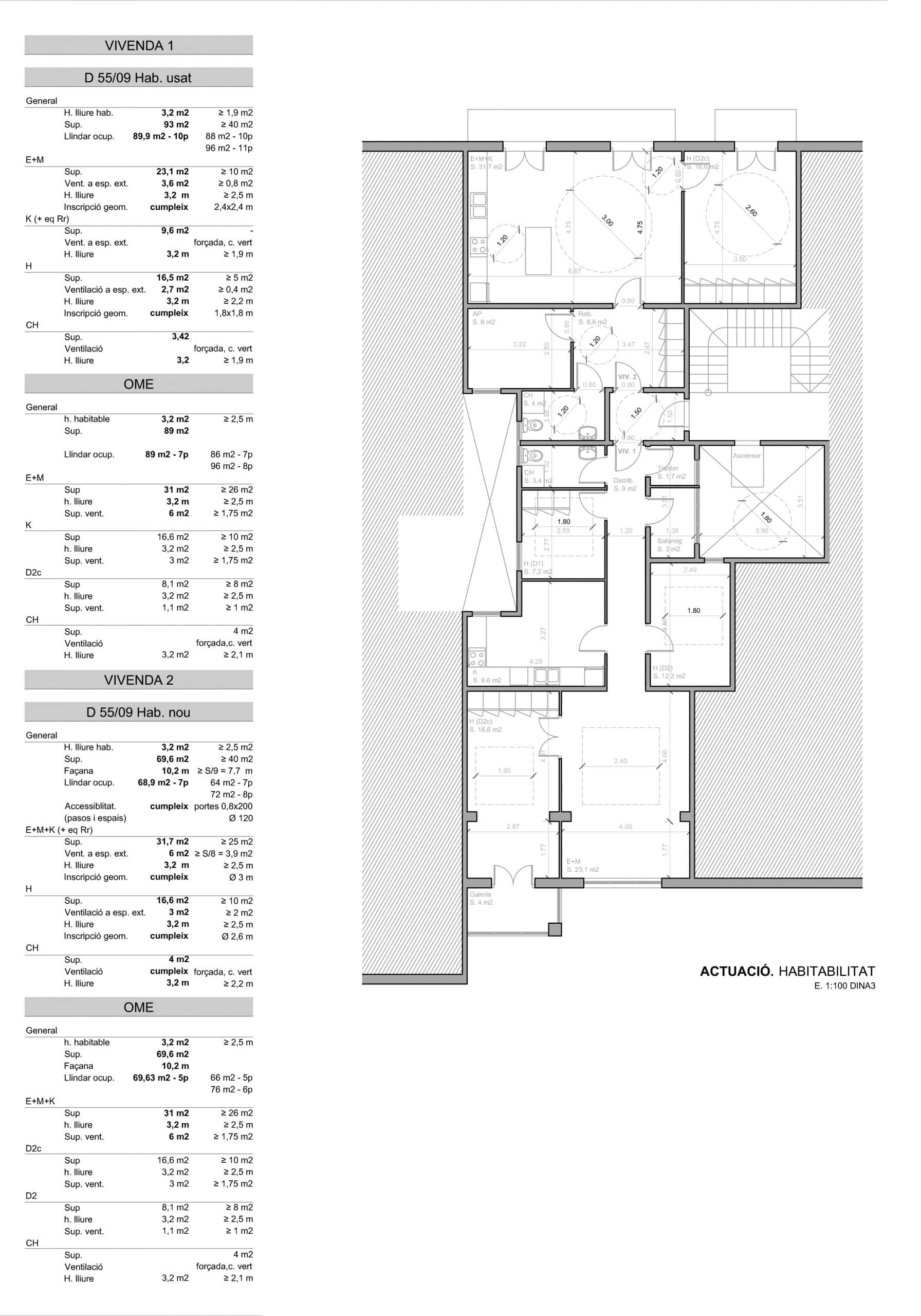
- ite arquitectes subdivision barcelona 01 2