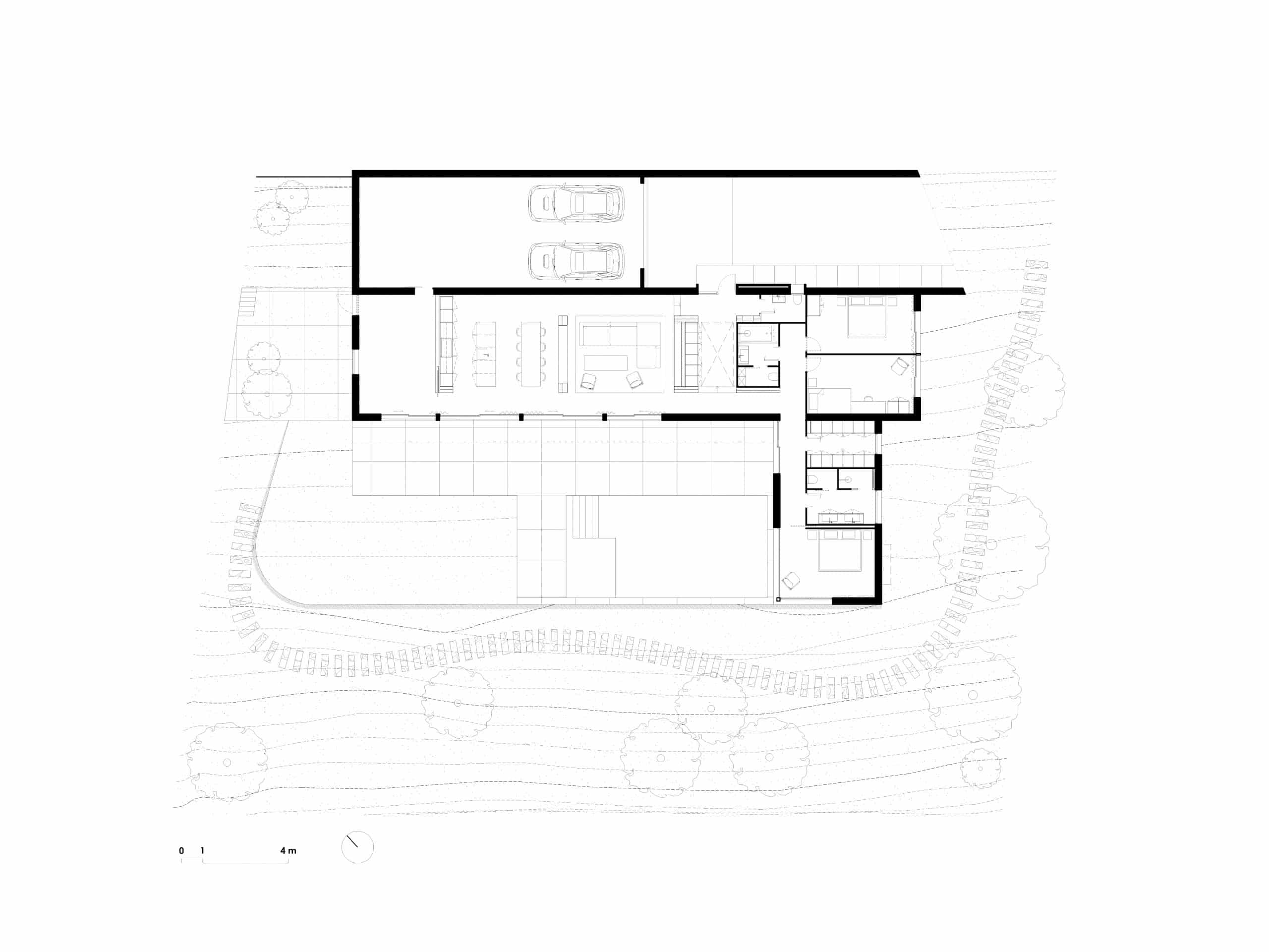
- 21006PJR 02 PLANTA