Descripción general e intenciones del proyecto
Nuestro cliente tiene un piso de unos 256 m2 en la calle Diputació de Barcelona y tiene la intención de alquilarlo. Es una zona en la que el precio de los alquileres está entre las más altas de Barcelona y pretende realizar una reforma con muy buenos acabados.
Debido a que el cliente valora que tendrá una más alta rentabilidad alquilando dos pisos más pequeños que uno grande decide contactar con nosotros para que realicemos el proyecto para subdividir el piso.
El entorno, antecedentes
El edificio fue construido el 1890 y forma parte del Ensanche Derecho de Barcelona, se inserta este en una manzana cerrada con patio interior. La clasificación urbanística del edificio es de 13E zona de densificación urbana según el Plan General Metropolitano del 1976. El edificio tiene unas 5 plantas más ático y sobreático y está entre medianeras.
La estructura vertical del edificio se compone de muros de carga de ladrillo macizo entorno a los 15 – 30 cm de grosor, combinados con muros de arriostramiento igualmente de 15 – 30 cm de grosos, en los bajos (de uso comercial) estos muros están apeados con vigas y pilares de fundición. La estructura horizontal se compone por forjados abovedados unidireccionales con luces de aproximadamente 5 metros, las vigas son de acero y las bovedillas de rasilla cerámica. Se sigue la típica estructura del Ensanche: las crujías interiores tienen las vigas en paralelo a la calle, las crujías exteriores tienen las vigas cargando en perpendicular a la calle y se usa la fachada como muro de carga.

La envolvente se compone por las fachadas de una sola hoja con un acabado exterior de almohadillado imitación piedra ejecutado con estuco de cal, la medianera en contacto directo con el edificio adyacente la cubierta plana no transitable con un acabado de grava y una solera en contacto con el terreno. Por supuesto, como es normal en estos edificios antiguos la fachada no está aislada, las ventanas no tienen doble cristal y se debería aislar térmicamente para conseguir unos mínimos requerimientos de confort.
Descripción del proyecto
En un primer lugar o estudio previo hemos comprobado que según la normativa urbanística el edificio admite la creación de una vivienda más. Dado que es la zona urbanística 13, para saber el número máximo de viviendas admitido en el edificio tendremos que contar la superficie construida total del edificio y dividirla entre el módulo de 80m2. Podéis tener más información sobre este tema en este artículo.
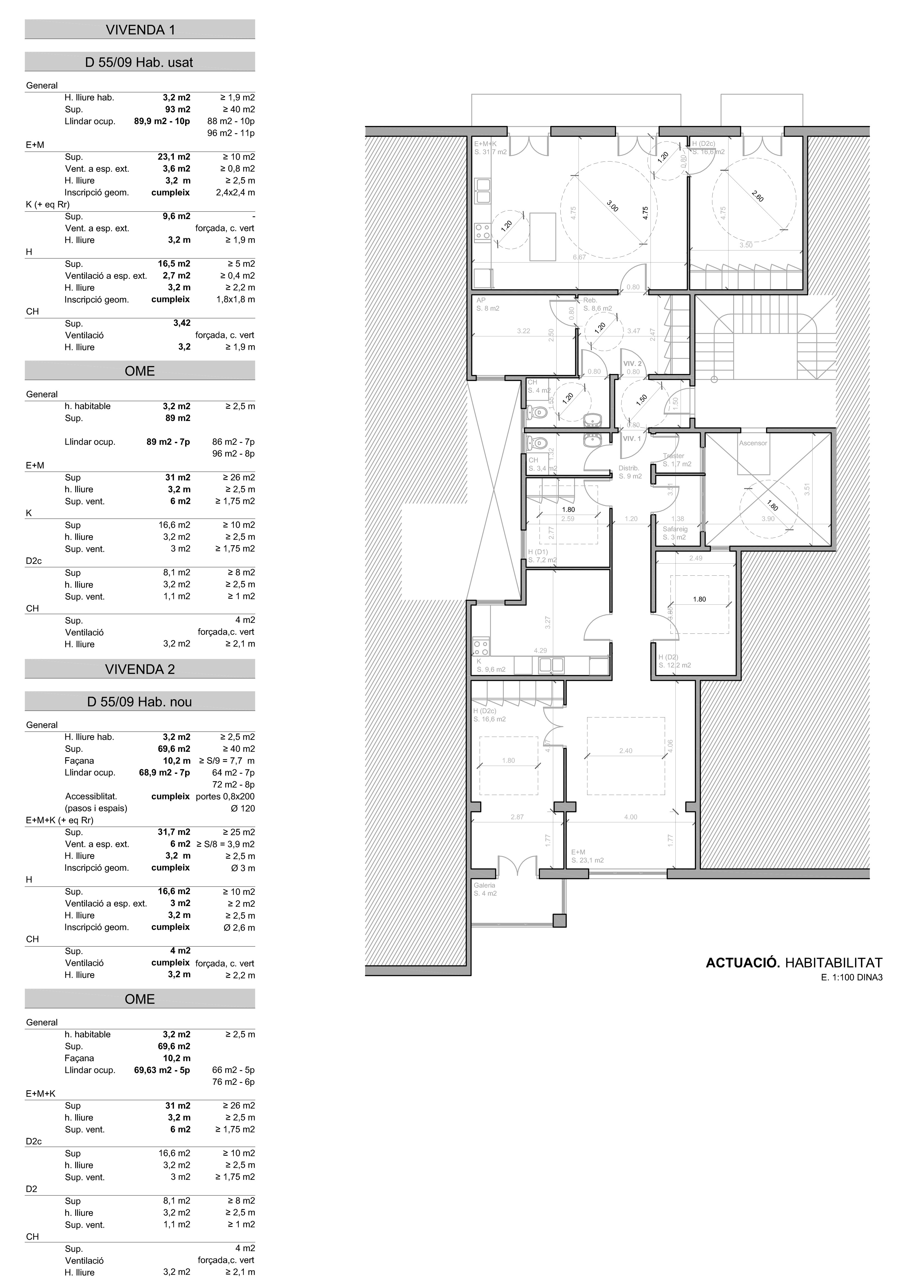
Después de superar positivamente la cuestión anterior el condicionante normativo más importante a la hora de hacer el proyecto de subdivisión o segregación de vivienda en Barcelona es el Decreto de Habitabilidad y en concreto el parámetro de la longitud de fachada en relación a la superficie (en vivienda de nueva creación deberá ser Long. Fachada > Sup útil / 9 ) que se define en el mismo.
Dado que en una operación de subdivisión que supone una intervención en menos de 50% de la superficie del edificio y que en este caso sólo se subdivide una entidad, entonces según el marco normativo habrá que considerar: una como vivienda de nueva creación y la otra como vivienda preexistente.
Esto es una limitación y definirá una estrategia a la hora de plantear la distribución de la reforma: si consideramos la longitud total de la fachada veremos que es mucho menor que lo que se define en la condición Sup útil/9 (la fachada entendida como espacio interior en contacto con un espacio exterior según la definición de las normas urbanísticas y el Decreto, debemos obviar la fachada del patio interior). Entonces llegaremos al planteamiento que se propuso en el proyecto: situar la vivienda de “nueva creación” en la parte de C/ Diputació que es donde hay más longitud de fachada, de esta manera la vivienda “preexistente” podrá tener una fachada que no cumpla con los parámetros que hemos mencionado.
También tendremos que aplicar el resto de parámetros distributivos que se definen en el Decret de Habitabilitat 141/2012, el CTE y la normativa de incendios de Barcelona ORMPCI pero que no son tan decisivos ni limitantes como los comentados anteriormente.









