LOCATION
Sant Feliu de Llobregat
CLIENT
Private client
YEAR
2011
AREA
81 m²
BUDGET
40,000 €
Project Description
Transforming a degraded space into a contemporary home requires a lens capable of reading the potential hidden beneath decay. In this comprehensive renovation project in Sant Feliu de Llobregat, we faced the challenge of converting a former office—occupying a privileged corner position (chamfer) overlooking the town square—into a flexible, luminous dwelling connected to its urban surroundings.
The Search for Spacing: Diagonal Vistas and Natural Light
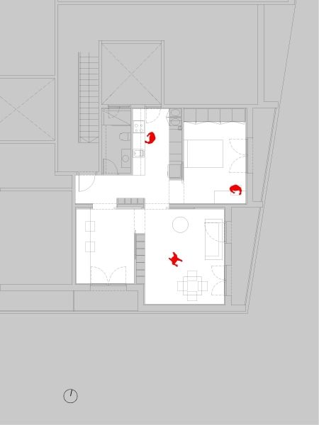
The starting point was an aged space that had lost its domestic essence through years of use as a workplace. The primary objective of the intervention was to reclaim natural light and maximize the sense of spatial openness. To achieve this, we implemented an intelligent layout strategy based on diagonal vistas.
Unlike conventional compartmentalized layouts, this apartment’s design allows the eye to travel from one end to the other, crossing rooms until it meets the exterior. These vanishing lines do more than just expand the internal spatial perception; they invite the square into the home, creating a fluid transition between private life and the public space of the historic center.
Functional Flexibility: The Bookshelf as a Backbone
In modern architecture, rigidity is an obstacle. Therefore, we designed a central circulation path that gravitates around a protagonist element: a large bespoke bookshelf. This volume is not merely a storage piece but a spatial organizer that allows for total versatility in daily life.
Thanks to this axis, the home can function as a unified whole or be fragmented into two distinct areas without functional interference. This configuration allows the apartment to adapt to the changing needs of its inhabitants—whether separating rest from social activity or creating independent remote-work environments.
Acoustic Comfort in the Heart of the City
Living in the center and enjoying views of the square should not mean sacrificing tranquility. One of the project’s greatest technical challenges was acoustic insulation. Given its proximity to an area of high activity and local festivities, a comprehensive protection system was implemented:
-
Insulated Wall Linings: Applied to critical perimeters to minimize structural noise transmission.
-
High-End Joinery: Low-rigidity frames combined with laminated glass and specific acoustic membranes.
The result is an oasis of silence. Even during moments of peak outdoor activity, indoor acoustic levels remain within optimal comfort standards, guaranteeing well-being under any circumstances.
Living Materials: The Honesty of Matter
The choice of materials responds to a philosophy of authenticity. We opted for “living materials”—those capable of aging with dignity and revealing the traces of their craftsmanship.
-
Concrete Floors: A continuous pavement where the subtle ripples of the trowel application are visible, giving the floor a unique texture.
-
Natural Wood: The furniture was crafted from spruce plywood, respecting the wood’s grain and knots. This organic warmth contrasts with the boldness of the concrete, balancing the home’s atmosphere.
Ultimately, this renovation in Sant Feliu de Llobregat is an exercise in balance: between silence and the city, between raw matter and sophisticated design, and between the past of an office and the future of a modern, flexible home.
















