Després d’una anàlisi detallada de l’edifici a la ITE que heu contractat, pot ser que aquest necessiti un projecte de rehabilitació per posar-lo al dia i rehabilitar-lo (per exemple aconseguir que no gasteu res d’energia com els edificis NZEB, o simplement adaptar-lo a nous requeriments (si volem afegir dues plantes més o fer una gran piscina)
El projecte bàsic i d’execució són els documents que defineix el CTE a la part Icom necessaris per executar obres d’edificació.
PROJECTE BÀSIC
- Justificació urbanística.

Quadre de justificació urbanística
- Memòria descriptiva (s’estableixen els paràmetres normatius que aconseguirà la intervenció. Per exemple: les façanes aïllaran el mínim normatiu que és U=0,3 W/m2K).
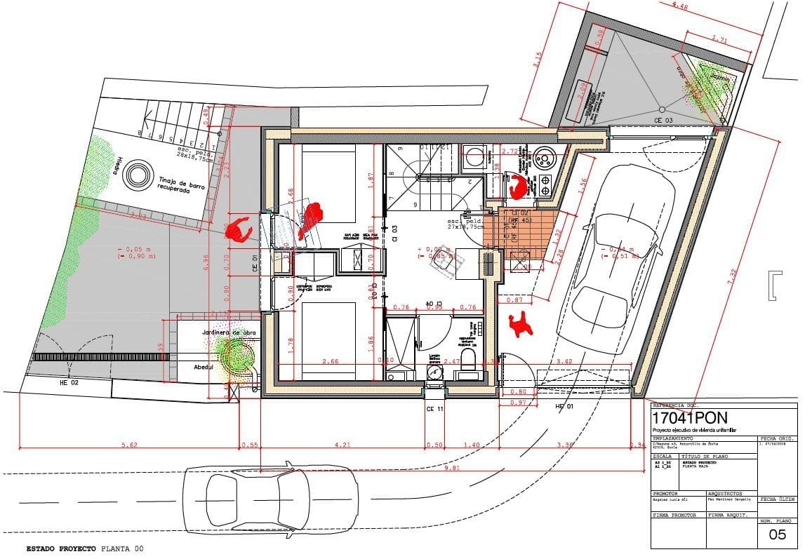
- Plànols.
Exemple de plànol de justificació urbanística a secció
- Pressupost per capítols. Es tracta d’un pressupost aproximat valorant únicament l’estructura, el capítol d’obra, el capítol d’instal·lacions, sense entrar en els detalls de cadascuna de les partides que hi ha dins dels capítols.
PROJECTE D’EXECUCIÓ
- Memòria constructiva (es descriuen constructivament tots els sistemes – envolupant, estructura, instal·lacions – i les prestacions que s’han aconseguit amb la solució constructiva concreta. Per exemple: les façanes estaran compostes d’una doble fulla ventilada d’obra de fàbrica de maó .La fulla interior de maó perforat i l’exterior de maó buit doble. Amb aïllament interior de poliuretà projectat PU de gruix 20 cm i aïllaran U=0,15 W/m2K)
- Justificació del Codi Tècnic de l’Edificació.
- Plànols de detalls constructius i estructura, quadres de fusteries, plànols de materials.

Exemple de pla de definició estructural
Exemple de plànol de definició constructiva de l’edifici a la planta

Exemple de pla de definició constructiva. Detalls a secció.
- Instruccions d’ús i manteniment.
- Pla de control de qualitat. Per exemple en el cas concret de l’aïllament: es prescriurà unes comprovacions de l’aïllament tant documentals com a obra que consistiran a: verificar la fitxa tècnica del fabricant – comprovar conductivitats del material, densitats etc. – comprovar el marcatge CE, i el més important realitzar proves aleatòries de control de gruixos, d’aquesta manera es pot prescriure, que mitjançant una agulla es punxi cada 10 m2 el parament d’aïllament per comprovar que el gruix no és inferior a 20 cm de profunditat)
- Medicions per partides i unitat d’obra. (cada partida d’obra, es descriurà qualitativament i es valorarà quantitativament; per exemple
- Certificat energètic.
Tots aquests documents poden formar part del projecte. Si no vols emportar-te sorpreses en una obra, en allò que més cal invertir és en el projecte. El projecte permet: Controlar la qualitat del construït, controlar el pressupost i sobretot, que allò que construeixes, la teva inversió, estigui dins de la normativa. Consulta’ns o demana pressupost a KAITEK ARQUITECTURA sense cap compromís.









